Skip to content
Società Trasparente News Ricerca Personale Fornitori

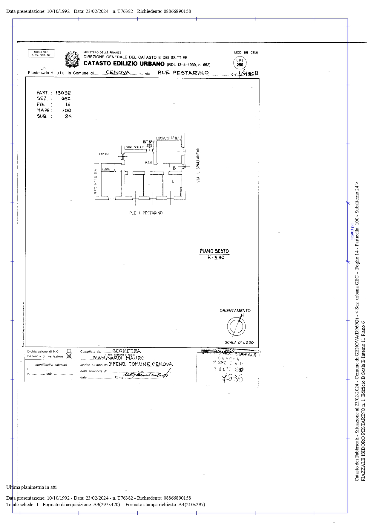
Piazzale Isidoro Pestarino 1/11 scala B

Piazzale Isidoro Pestarino 1 Genova
155000

Piazzale Isidoro Pestarino

Piazzale Isidoro Pestarino, 1, Genova, GE, Italia

View larger map

Informazioni

metriquadri
126 m²
camere da letto
7 Camere da letto
numero di bagni
1 Bagni

Descrizione

L’immobile si trova nel quartiere di San Teodoro, in un contesto comodo e ben servito, con facilità di parcheggio e tutti i servizi a breve distanza, tra cui la metropolitana di Piazza di Negro. Appartamento luminoso con una splendida vista sul porto di Genova.

Situato al sesto piano con ascensore, l’appartamento da ristrutturare offre un ampio ingresso, quattro camere, cucina, bagno e ripostiglio.

L’immobile è ubicato nel Municipio II Centro Ovest – San Teodoro.

Comprando con noi di S.P.Im., società del Comune di Genova, la vendita è diretta e senza costi di intermediazione. Potrai così risparmiare per realizzare la casa dei tuoi sogni.

Caratteristiche

Id Immobile: 45188
Dimensioni proprietà: 125 m²
Bagni: 1
Ascensore: Si
Piano: 6
Totale Piani edificio: 6
Dimensioni proprietà: 126 m²
Camere da letto: 7
Balcone: No
Cantina: No
Stato dell'immobile: Da ristrutturare

Efficienza Energetica

Indice di rendimento dell'energia rinnovabile: Autonomo
Consumo di energia (kWh/m²a): 171,32
Classe energetica: G
A+
A
B
C
D
E
F
G
H
Classe energetica: G

Planimetria

Mappa

Piazzale Isidoro Pestarino

Piazzale Isidoro Pestarino, 1, Genova, GE, Italia

View larger map

Contattaci

    Torna su